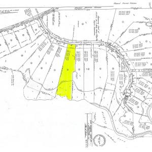
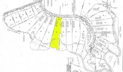
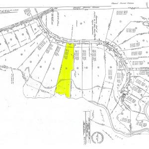
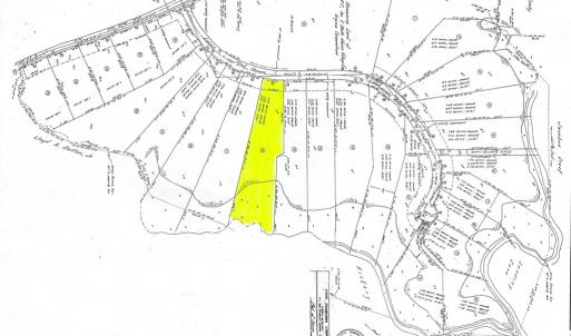
Lot 16 LUCAS TR, MACHIPONGO, Northampton

$93,000
MACHIPONGO, VA
3.8 acres

Lot 16 LUCAS TR
MACHIPONGO, VA 23405
United States

Active
This listing is provided by BLUE HERON REALTY CO..

Beautiful woode parcel in quiet community with boat ramp and access to Hungar's Creek and Chesapeake Bay. Boating, kayaking, birdwatching away from the hustle and bustle yet a very short drive to Cape Charles and 45 minutes to Virginia Beach.Nice path to perspective homesite. 4 bedroom septic approved.

Last updated
March 6, 2026
MLS ID / MOPLS ID
67945
Address

Lot 16 LUCAS TR
MACHIPONGO, VA 23405

Acreage
3.82
MLS ID / MOPLS ID
67945
Price
$93,000

Let us help you find your favorite place

Your Local Land Specialist