8220 New Grove Rd, Victoria, Lunenburg

$248,000
Victoria, VA
5.1 acres

8220 New Grove Rd
Victoria, VA 23974
United States

Active
This listing is provided by eXp Realty LLC.

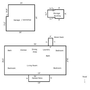
Spacious 5+ Acre Country Property – Victoria/Kenbridge, VA- Welcome to 8220 New Grove Rd, a well-kept 2016 doublewide on permanent foundation set on over 5 mostly level acres in Lunenburg County. The land offers a great mix of open cleared space and wooded areas, ideal for a small farm, homestead, recreation, or hunting, with plenty of room to expand. Established fruit trees include pear, apple, peach, and plum. Inside, you'll find a bright, open floor plan designed for comfortable daily living and entertaining. Two bedrooms and a full bath are located on one side of the home, separated by a large living room and open kitchen with space for an eat-in dining area or island. The primary suite features a walk-in closet and ensuite bath with separate tub and shower plus vanity nook. A separate laundry room adds storage and space for a freezer. Outside features a single-car garage with concrete floor, perfect for storage or hobbies. Conveniently located between Kenbridge and Victoria, with easy access to Blackstone/Fort Pickett and South Hill. Highlights include Agricultural zoning, Starlink internet, nearby private schools and passed a government-backed loan appraisal in 2024.

Last updated
January 24, 2026
MLS ID / MOPLS ID
58220
Address

8220 New Grove Rd
Victoria, VA 23974

Acreage
5.11
Bedrooms
3
Bathrooms
2
MLS ID / MOPLS ID
58220
Price
$248,000

Let us help you find your favorite place

Your Local Land Specialist