1187 Gigg Road, Dundas, Lunenburg

$399,900
Dundas, VA
3.2 acres

1187 Gigg Road
Dundas, VA 23938
United States

Active
This listing is provided by Real Broker LLC.

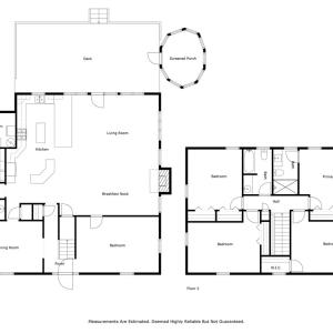
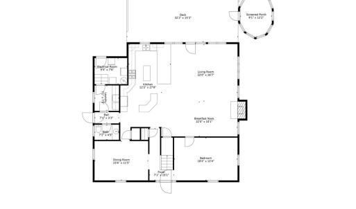
Welcome to your private 3.2-acre retreat—perfectly designed for entertaining, relaxing, and everyday living. Inside, the spacious kitchen and family room flow together around a cozy fireplace, opening onto an expansive 16' x 45' deck with a retractable awning—ideal for outdoor dining or gatherings in any season. Upstairs, you'll find four generously sized bedrooms, offering plenty of space for family and guests. The thoughtful layout continues with a carport that connects directly to the utility room and an 11' x 20' workshop, creating the perfect setup for hobbies, projects, or extra storage. Additional storage buildings are also located on the property, ensuring space for all your needs. Recent updates bring peace of mind, including a new roof, new hot water heater, and a whole-house generator that conveys with the sale. This home combines privacy, functionality, and comfort—all in a beautiful rural setting close to I-85, Microsoft, FASTC, and within 90 minutes from Richmond and Raleigh. Come see this one today!

Last updated
October 2, 2025
MLS ID / MOPLS ID
57732
Address

1187 Gigg Road
Dundas, VA 23938

Acreage
3.20
Bedrooms
4
Bathrooms
2
MLS ID / MOPLS ID
57732
Price
$399,900

Let us help you find your favorite place

Your Local Land Specialist