5600 Mount Tabor RD, Catawba, Montgomery

$2,100,000
Catawba, VA
157.9 acres

5600 Mount Tabor RD
Catawba, VA 24070
United States

Active
This listing is provided by RE/MAX 8.

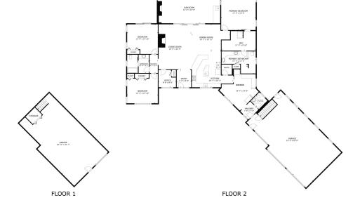
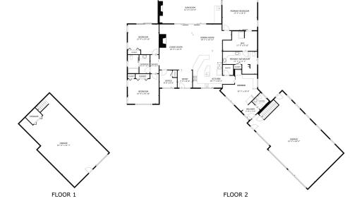
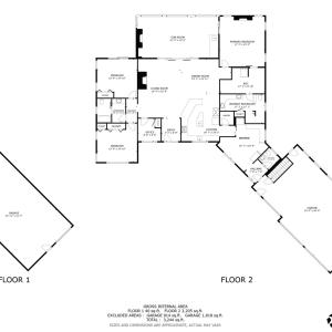
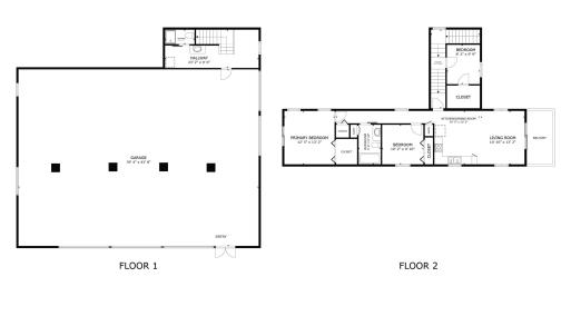
Exceptional 157-acre estate in Catawba Valley featuring a luxurious custom-built home, high-quality barn with full 3BR/2BA apartment, and direct access to National Forest trail systems. The main 3BR/2.5BA home includes 8'' wide plank tongue-in-groove heart pine floors, Amish-built cabinetry, vaulted ceilings w/ reclaimed beams, a gourmet kitchen, and screened porch with outdoor fireplace & kitchen. Outdoor features include a koi pond with waterfall and wide mountain views. Barn offers 3 stall capacity, conditioned tack room with full bath, drive-through trailer bays, and composite stairs leading to the upper-level apartment with granite, hickory cabinetry, and eucalyptus flooring. Owned solar array powers the main home. Home & barn generators. Addt'l property features include a spring

Last updated
March 18, 2026
MLS ID / MOPLS ID
925558
Address

5600 Mount Tabor RD
Catawba, VA 24070

Acreage
157.86
Bedrooms
3
Bathrooms
2
MLS ID / MOPLS ID
925558
Price
$2,100,000

Let us help you find your favorite place

Your Local Land Specialist