20363 CANVASBACK LN, ONANCOCK, Accomack

$599,000
ONANCOCK, VA
0.5 acres

20363 CANVASBACK LN
ONANCOCK, VA 23417
United States

Active
This listing is provided by COLDWELL BANKER HARBOUR REALTY.

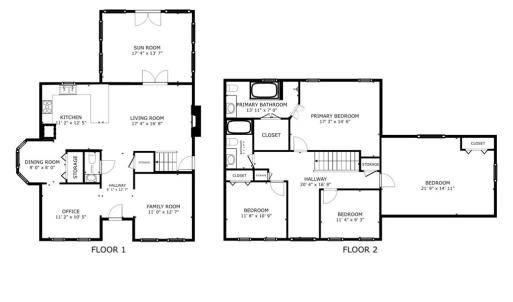
Spacious canal front family home in the highly sought after Schooner Bay Community now available. Home features 4 bedrooms, 2.5 baths, (1000 gal/3bedroom septic). 2 level deck, formal dining room, living room, breakfast room, snack bar in the kitchen- family room comb with fireplace and a spacious canal side sunroom all with gleaming hardwood floors. Watch the sunset from the front wrap around porch and sunrise from the back deck. And maybe best of all this property offers safe harbor for your boat right here along the 240' +/- vinyl bulkhead with dock, boardwalk, and jetski lift. Located a short drive from the vibrant towns of Onancock and Onley where you will find commerce and medical facilities.

Last updated
April 21, 2026
MLS ID / MOPLS ID
71248
Address

20363 CANVASBACK LN
ONANCOCK, VA 23417

Acreage
0.53
Bedrooms
4
Bathrooms
2
MLS ID / MOPLS ID
71248
Price
$599,000

Let us help you find your favorite place

Your Local Land Specialist