Lot 2556 CAPTAINS CORRIDOR, GREENBACKVILLE, Accomack

$236,990
GREENBACKVILLE, VA
9,750.0 acres

Lot 2556 CAPTAINS CORRIDOR
GREENBACKVILLE, VA 23356
United States

Active
This listing is provided by Monument Sotheby's International Realty.

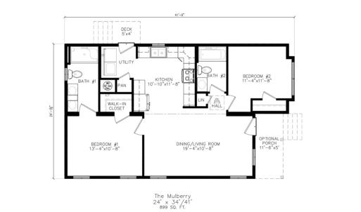
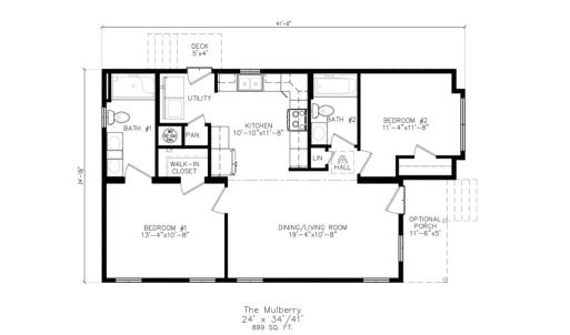
The Mulberry is a spacious 899 sq. ft. cottage designed to provide comfort and flexibility. With 2 bds & 2 full ba, it's perfect affordable option for a 2nd home/beach house. The open dining & living area create a welcoming space for gatherings, while the optional front porch adds charm & outdoor functionality. Thoughtful details like a walk-in closet & utility area make The Mulberry both practical & inviting. This cottage checks all the boxes & can be modified to increase square footage & bedrooms. This home is located in Captain's Cove & features indoor & outdoor pools, a restaurant, banquette rooms, fitness center, basketball & tennis courts, boat launch, playground, security & so much more! Home is to be built & the photos of the model home may include options. Taxes based on land only

Last updated
March 24, 2026
MLS ID / MOPLS ID
71072
Address

Lot 2556 CAPTAINS CORRIDOR
GREENBACKVILLE, VA 23356

Acreage
9750.00
Bedrooms
2
Bathrooms
2
MLS ID / MOPLS ID
71072
Price
$236,990

Let us help you find your favorite place

Your Local Land Specialist