3238 AMIDSHIP DR, GREENBACKVILLE, Accomack

$369,990
GREENBACKVILLE, VA
65.0 acres

3238 AMIDSHIP DR
GREENBACKVILLE, VA 23356
United States

Active
This listing is provided by HALL REALTY INC.

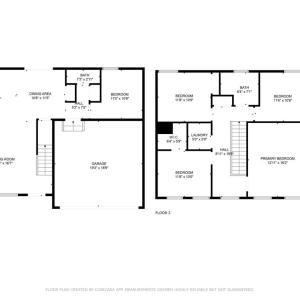
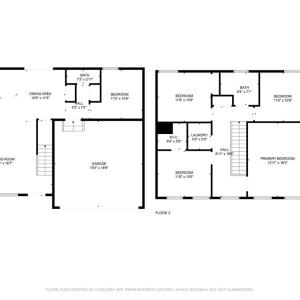
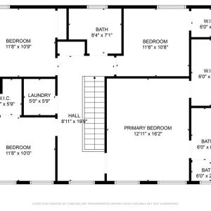
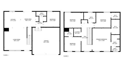
Topaz C Model offered by Gemcraft Homes, Under Construction. Two-Story Single Family home featuring 4BR/2.5 BA, 1,911 sq ft., 2 Car garage. Main level offers an expansive open floor plan great room, kitchen and breakfast nook perfect for entertaining. Choice room on first level would make a great office space/reading room. Second level includes a large owners suite with walk-in closet, 3 additional BR's, hall bath and laundry area. Options available to add your own personal touch. Pictures may have upgraded features. Captains Cove Golf & Waterfront Community amenities offer: 9 Hole Pristine Golf Course, 3 Pools (2 Outdoor/1 Indoor), Fitness Center, Boat Ramp, Basketball & Pickle Ball Courts, Playground, Walking & Biking Trails, Picnic Area, Dog Park, Security & more.

Last updated
April 25, 2026
MLS ID / MOPLS ID
70987
Address

3238 AMIDSHIP DR
GREENBACKVILLE, VA 23356

Acreage
65.00
Bedrooms
4
Bathrooms
2
MLS ID / MOPLS ID
70987
Price
$369,990

Let us help you find your favorite place

Your Local Land Specialist