108 MAIN SAIL CT, GREENBACKVILLE, Accomack

$361,990
GREENBACKVILLE, VA
70.0 acres

108 MAIN SAIL CT
GREENBACKVILLE, VA 23356
United States

Active
This listing is provided by HALL REALTY INC.

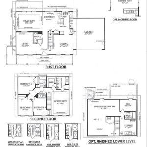
Bristol II Model offered by Gemcraft Homes New Construction. Two-Story single-family home, 4BR/2.5 BA, 1948 sq ft, 2-car garage back to the Golf Court. The openness of the first level offers plenty of space for entertaining for the whole family to enjoy. Large open kitchen layout w/plenty of cabinets and a deep pantry, Formal Living Room, Dining Room, Great Room.. Second level features Owners Suite w/large Walk-in Closet, 3 additional BR's. Home is To Be Built. Optional Elevations available to add your own personal touch and expand for your personal needs. Pictures may have upgraded features. Captains Cove Golf & Waterfront Community amenities offer: 9 Hole Pristine Golf Course, 3 Pools (2 Outdoor/1 Indoor), Fitness Center, Boat Ramp, Basketball & Pickle-ball Court, Playground, Picnic area

Last updated
December 15, 2025
MLS ID / MOPLS ID
65603
Address

108 MAIN SAIL CT
GREENBACKVILLE, VA 23356

Acreage
70.00
Bedrooms
4
Bathrooms
2
MLS ID / MOPLS ID
65603
Price
$361,990

Let us help you find your favorite place

Your Local Land Specialist