32237 CLEARWATER WAY, BELLE HAVEN, Accomack

$510,000
BELLE HAVEN, VA
3.9 acres

32237 CLEARWATER WAY
BELLE HAVEN, VA 23306
United States

Active
This listing is provided by Long & Foster - Main St.

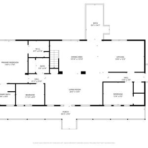
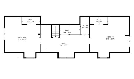
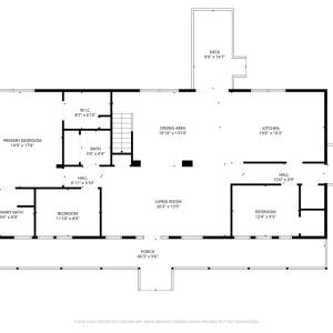
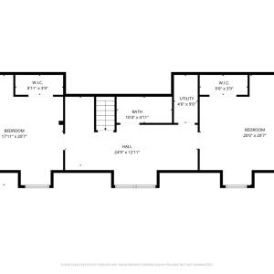
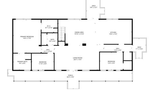
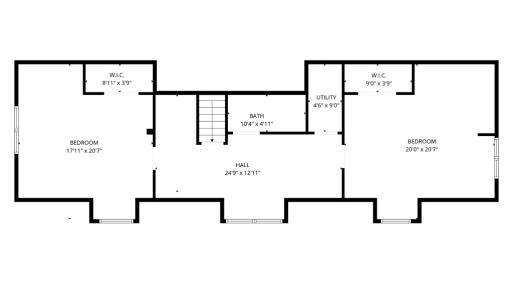
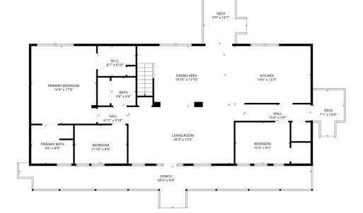
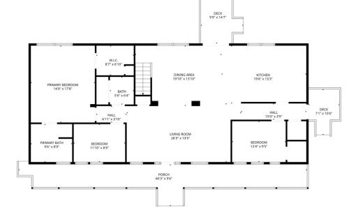
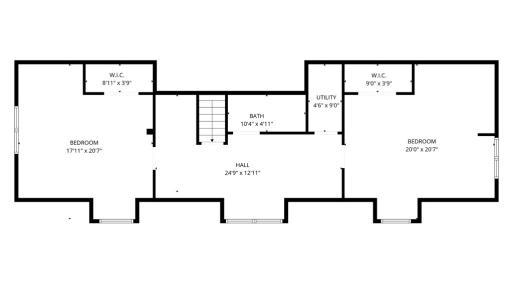
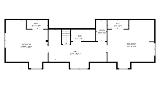
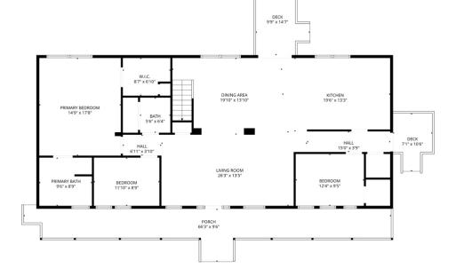
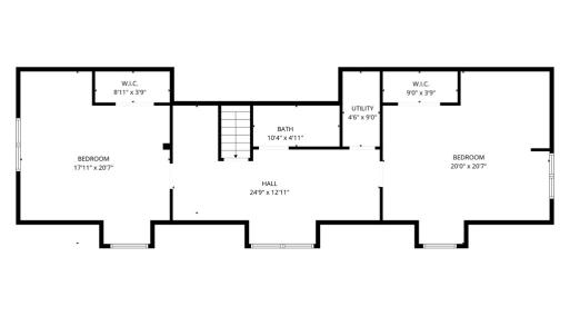
Seller offering $10,000 closing cost credit with full price offer! Charming Cape Cod on 3.8 acres in Bay Haven offers 4 bedrooms + office and 2.5 baths. Enjoy the covered front porch, open floor plan, and beautiful hardwood floors. The first-floor primary suite features a jetted tub, plus a 2nd bedroom, half bath, and laundry. Upstairs includes two large bedrooms, full bath, and loft with wet bar. Outdoors, relax on the rear or side deck, swim in the oval pool, or gather by the fire pit. Property includes a shed, and fruiting yard with blueberries, grapes, and fig tree. Community dock access for crabbing, fishing, kayaking, and canoeing. Updates: HVAC (2024), well pump (2024), water softener (2023). Coastal charm meets country living! don't miss this opportunity!

Last updated
October 28, 2025
MLS ID / MOPLS ID
65337
Address

32237 CLEARWATER WAY
BELLE HAVEN, VA 23306

Acreage
3.88
Bedrooms
4
Bathrooms
2
MLS ID / MOPLS ID
65337
Price
$510,000

Let us help you find your favorite place

Your Local Land Specialist