Lot 1948 BUCCANEER BLVD, GREENBACKVILLE, Accomack

$299,000
GREENBACKVILLE, VA
11,700.0 acres

Lot 1948 BUCCANEER BLVD
GREENBACKVILLE, VA 23356
United States

Active
This listing is provided by Monument Sotheby's International Realty.

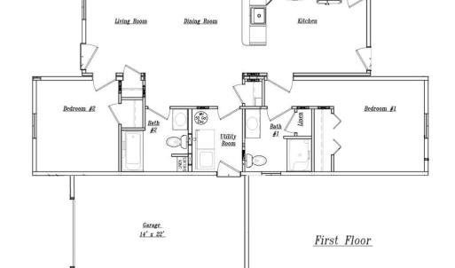
The Sloop is a 2 bedroom 2 bathroom ranch style home with just under 1,000 square feet of living space. Enjoy the open concept living, dining and kitchen area with a breakfast bar. Wonderful for entertaining. The bedrooms are located on opposite sides of the home allowing extra privacy. The primary bedroom has it's own en-suite bathroom for your convenience. This home is complete with a built in garage as well! This property is located in Captain's Cove & features indoor & outdoor pools, a restaurant, banquette rooms, fitness center, basketball & tennis courts, boat launch, playground, security & so much more! Home is to be built and the photos of the model home may include options. Taxes are based on the land value only.

Last updated
October 12, 2025
MLS ID / MOPLS ID
65300
Address

Lot 1948 BUCCANEER BLVD
GREENBACKVILLE, VA 23356

Acreage
11700.00
Bedrooms
2
Bathrooms
2
MLS ID / MOPLS ID
65300
Price
$299,000

Let us help you find your favorite place

Your Local Land Specialist