LOT 490 DRY DOCK CT, GREENBACKVILLE, Accomack

$299,990
GREENBACKVILLE, VA
70.0 acres

LOT 490 DRY DOCK CT
GREENBACKVILLE, VA 23356
United States

Active
This listing is provided by HALL REALTY INC.

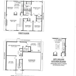
The Hanover is a modern raised ranch home featuring 3 bedrooms, 2 baths, and a 2-car garage. Offered by Gemcraft Homes New Construction. This home also features an open, split level foyer. Spacious open floor space that contains the Great Room, a Dining area, and a combined Breakfast and Kitchen with an optional island. The owner's suite includes 2 walk-in closets, and an optional luxury bath. This home also offers a a two-car garage and a 4' conditioned crawl space that can be used for extra storage. Home is TO BE BUILT. Call today for a private showing,Captains Cove Golf & Waterfront Community amenities offer: 9 Hole Pristine Golf Course, 3 Pools (2 Outdoor/1 Indoor), Fitness Center, Boat Ramp, Basketball & Pickle-Ball Courts, Playground, Walking & Biking Trails, Picnic Area, Dog Park

Last updated
February 17, 2026
MLS ID / MOPLS ID
65180
Address

LOT 490 DRY DOCK CT
GREENBACKVILLE, VA 23356

Acreage
70.00
Bedrooms
3
Bathrooms
2
MLS ID / MOPLS ID
65180
Price
$299,990

Let us help you find your favorite place

Your Local Land Specialist