3177 AMIDSHIP DR, GREENBACKVILLE, Accomack

$344,888
GREENBACKVILLE, VA
65.0 acres

3177 AMIDSHIP DR
GREENBACKVILLE, VA 23356
United States

Active
This listing is provided by HALL REALTY INC.

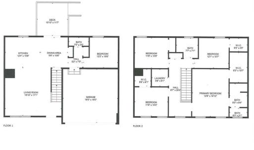
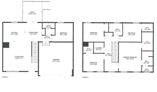
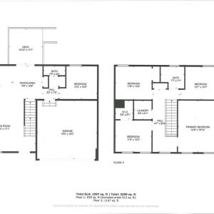
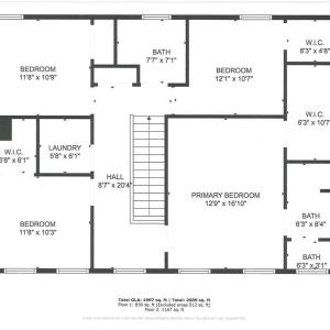
Move-In Ready Topaz C Model offered by Gemcraft Homes New Construction. Two-Story Single Family home featuring 4BR/2.5 BA, 1,911 sq ft., 2 Car garage & 12 x 12 composite deck. Main level offers an expansive open floor plan great room, kitchen island, granite countertops, and breakfast nook perfect for entertaining. Choice room on first level would make a great office space/reading room. Second level includes a large owners suite with walk-in closet, 3 additional BR's, hall bath and laundry area. Pictures may have upgraded features. Captains Cove Golf & Waterfront Community amenities offer: 9 Hole Pristine Golf Course, 3 Pools (2 Outdoor/1 Indoor), Fitness Center, Boat Ramp, Basketball & Pickle-ball Courts, Playground, Picnic Area, Dog Park, Walking/Biking Trails, Security & more.

Last updated
December 15, 2025
MLS ID / MOPLS ID
63847
Address

3177 AMIDSHIP DR
GREENBACKVILLE, VA 23356

Acreage
65.00
Bedrooms
4
Bathrooms
2
MLS ID / MOPLS ID
63847
Price
$344,888

Let us help you find your favorite place

Your Local Land Specialist