1805 Pine Ave, Buena Vista, Rockbridge

$395,000
Buena Vista, VA
0.3 acres

1805 Pine Ave
Buena Vista, VA 24416
United States

Active
This listing is provided by Lexington Real Estate Connection.

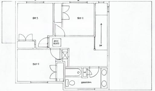
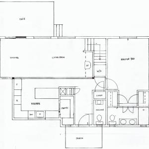
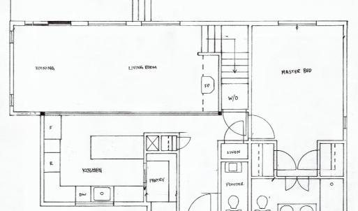
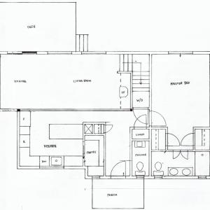
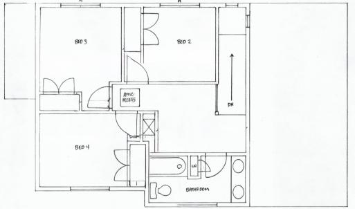
Welcome to this beautiful new build perched on Pine Avenue in the charming town of Buena Vista. Thoughtfully designed, this modern home offers an open floor plan featuring lovely engineered hardwood and lots of natural light.The spacious kitchen boasts timeless white cabinetry, glass upper cabinets, granite countertops, a tile backsplash, and a walk-in pantry. The living room centers around an elegant electric fireplace, creating a cozy gathering space! The main-floor primary suite showcases a trey ceiling, beautifully tiled shower, and tasteful finishes. Upstairs, you'll find three additional bedrooms and a full bath, offering plenty of room for family or guests. Enjoy small-town living at its bestjust minutes from downtown Buena Vista's shops, SVU, parks, and the scenic Maury River.

Last updated
October 30, 2025
MLS ID / MOPLS ID
139642
Address

1805 Pine Ave
Buena Vista, VA 24416

Acreage
0.29
Bedrooms
4
Bathrooms
2
MLS ID / MOPLS ID
139642
Price
$395,000

Let us help you find your favorite place

Your Local Land Specialist