206 FIRST AVE, Farmville, Prince Edward

$329,000
Farmville, VA
0.9 acres

206 FIRST AVE
Farmville, VA 23901
United States

Active
This listing is provided by Piedmont Real Estate.

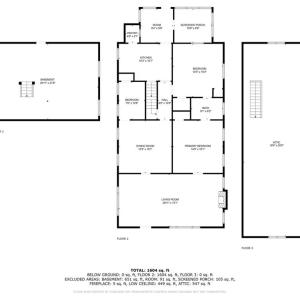
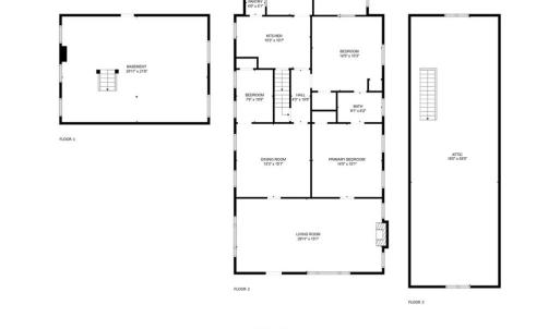
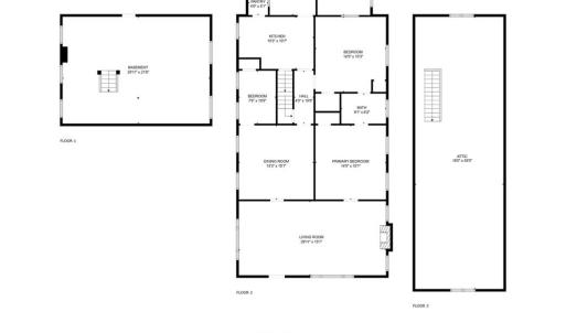
Charming 3-Bedroom, 1-Bathroom Home in Historic Farmville, VA Welcome to 206 First Ave, a well-maintained gem in the heart of Farmville, VA. This 3-bedroom, 1-bathroom home offers the perfect blend of historical charm and modern updates, ideal for those looking to add their personal touch. Key Features: Updated Electrical & Plumbing: New wiring and plumbing ensure peace of mind for years to come. New Siding & Insulation: Recently upgraded for improved energy efficiency and curb appeal. Efficient Heating & Cooling: Updated furnace with a separate heat pump for both heating and air conditioning. New Windows: Enjoy natural light with updated windows on 2/3 of the home, while preserving the historic character with front windows covered in plexiglass. Roof: Replaced approximately 10 years ago for added durability. Kitchen: Renovated in the early 2000s – fully functional but could benefit from a cosmetic update to suit your style. The bones of this home are in fantastic shape, so if you're handy with a paintbrush or looking to make a few updates, this is the perfect opportunity to create your dream space. With its blend of classic features and modern improvements

Last updated
January 30, 2026
MLS ID / MOPLS ID
56907
Address

206 FIRST AVE
Farmville, VA 23901

Acreage
0.85
Bedrooms
3
Bathrooms
1
MLS ID / MOPLS ID
56907
Price
$329,000

Let us help you find your favorite place

Your Local Land Specialist