Madison Ave, Danville, Pittsylvania

$499,900
Danville, VA
0.3 acres

Madison Ave
Danville, VA 24540
United States

Active
This listing is provided by Mark A. Dalton & Co., Inc..

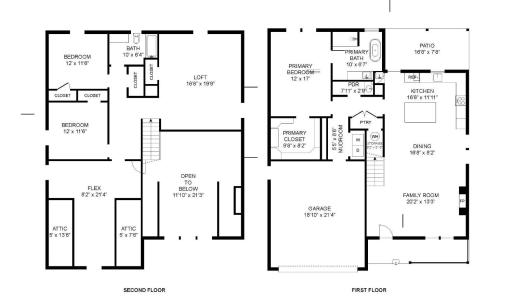
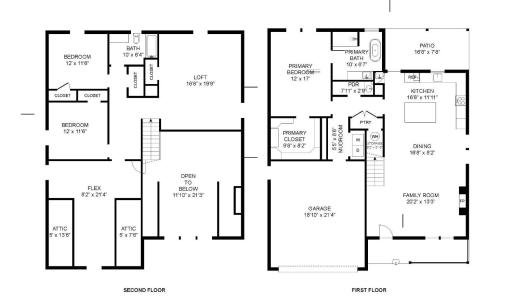
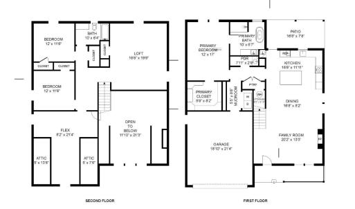
This property is currently under construction. Step into the luxury of this new construction, Legacy, Reverse Shed Dormer model, featuring a beautiful 3 bedroom 2.5 bathroom house with open floor plan and a spacious living area with an electric fireplace. Relax on the back patio or beautiful front porch and enjoy the serenity. The kitchen is a chefs delight with a kitchen island, plentiful cabinet space and open layout. The spacious master bedroom is on the main floor with a walk-in closet and en-suite bathroom. Walk up the beautiful polyurethane oak tread stairs to the second floor where you will find two additional bedrooms and full bathroom as well as a loft. Exterior will be finished with Charcoal Grey LP Smart Siding & Evenlyn Bay Brick. Estimated completion date 5/15/2026. Disclaimer: This property is currently under construction. All images, renderings, and descriptions are for illustrative purposes only and may include optional upgrades or features that are not included

Last updated
November 21, 2025
MLS ID / MOPLS ID
362911
Address

Madison Ave
Danville, VA 24540

Acreage
0.27
Bedrooms
3
Bathrooms
3
MLS ID / MOPLS ID
362911
Price
$499,900

Let us help you find your favorite place

Your Local Land Specialist