TBD W Creek RD, Crewe, Nottoway

$389,900
Crewe, VA
7.0 acres

TBD W Creek RD
Crewe, VA 23930
United States

Active
This listing is provided by First Choice Realty, Inc.

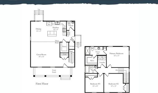
Your Private 7-Acre Oasis Awaits! Discover the meticulously designed Jameson Plan, a 3 BEDROOM, 2 BATH home thoughtfully arranged for comfort and relaxation. The open, airy living spaces feature tasteful finishes and LVP flooring throughout the main areas. The kitchen boasts GRANITE counters, MERILLAT cabinets, a central ISLAND, and PANTRY—perfect for everyday living and entertaining. The PRIMARY SUITE is privately located in the back of the home, complete with EN SUITE BATH, LINEN CLOSET, and WALK-IN CLOSET, while two additional bedrooms located at the front of the home share a full bath. Slated for completion August 2026, this home combines modern elegance with serene country living on 7 expansive acres.

Last updated
April 4, 2026
MLS ID / MOPLS ID
59462
Address

TBD W Creek RD
Crewe, VA 23930

Acreage
7.00
Bedrooms
3
Bathrooms
2
MLS ID / MOPLS ID
59462
Price
$389,900

Let us help you find your favorite place

Your Local Land Specialist