142 Micklem Ln, Shipman, Nelson

$319,900
Shipman, VA
5.0 acres

142 Micklem Ln
Shipman, VA 22971
United States

Active
This listing is provided by Elite Realty.

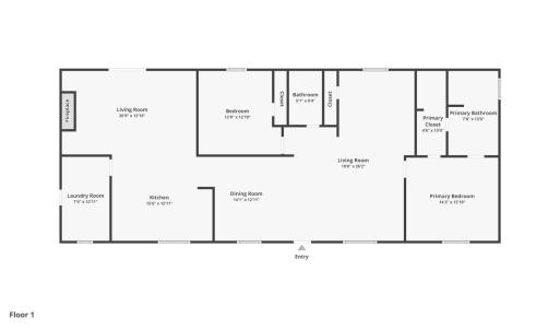
Welcome to 142 Micklem Lane in charming Shipman, VA! Nestled on a peaceful lot surrounded by mature trees, this beautifully maintained 2 bedroom, 2 bath home offers a perfect blend of comfort and convenience. Step inside to discover an open concept living are with soaring ceilings, a cozy fireplace, and plenty of natural light. This spacious kitchen boasts stainless steel appliances, a center island, and a nice dining area. Primary suite offers a walk in closet and beautifully updated primary bathroom. Outside enjoy a large back deck, as well as a peaceful backyard perfect for relaxing or entertaining. Also, just minutes from countless wineries and breweries... Don't miss out on this tranquil retreat-schedule your showing today!

Last updated
April 25, 2026
MLS ID / MOPLS ID
366107
Address

142 Micklem Ln
Shipman, VA 22971

Acreage
4.99
Bedrooms
2
Bathrooms
2
MLS ID / MOPLS ID
366107
Price
$319,900

Let us help you find your favorite place

Your Local Land Specialist