407 Ferry Landing Drive, Boydton, Mecklenburg

$689,900
Boydton, VA
3.0 acres

407 Ferry Landing Drive
Boydton, VA 23917
United States

Active
This listing is provided by KW Allegiance.

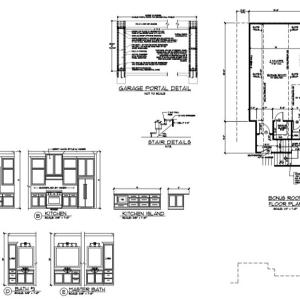
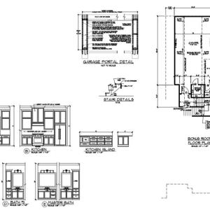
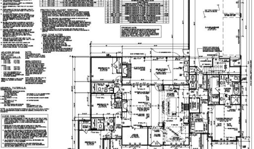
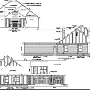
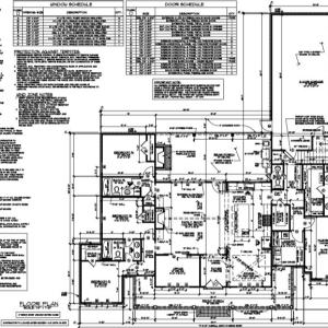
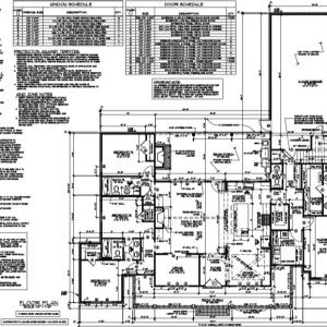
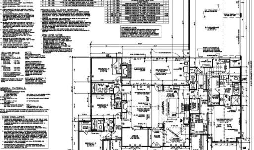
This new construction farmhouse-style ranch home offers a spacious and functional layout with main-level living. The open foyer leads into a connected family room, kitchen, and dining area, creating a bright and comfortable main living space. The home includes a large pantry providing additional storage and convenience. An office space overlooks the family room, offering flexibility for work or additional living needs. The primary bedroom is positioned on one side of the home for added privacy, while three additional bedrooms are located on the opposite side. An attached three-car garage provides ample space for vehicles and storage. Located in Boydton near Lake Gaston, an area known for boating, fishing, and outdoor recreation.

Last updated
April 18, 2026
MLS ID / MOPLS ID
59394
Address

407 Ferry Landing Drive
Boydton, VA 23917

Acreage
2.98
Bedrooms
5
Bathrooms
4
MLS ID / MOPLS ID
59394
Price
$689,900

Let us help you find your favorite place

Your Local Land Specialist