532 Ferry Landing Drive, Boydton, Mecklenburg

$789,900
Boydton, VA
1.3 acres

532 Ferry Landing Drive
Boydton, VA 23917
United States

Active
This listing is provided by KW Allegiance.

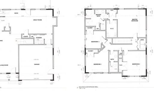
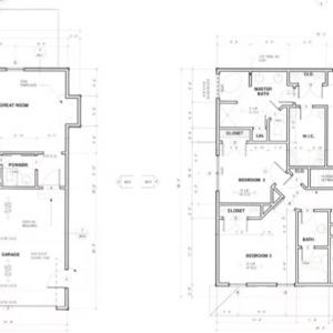
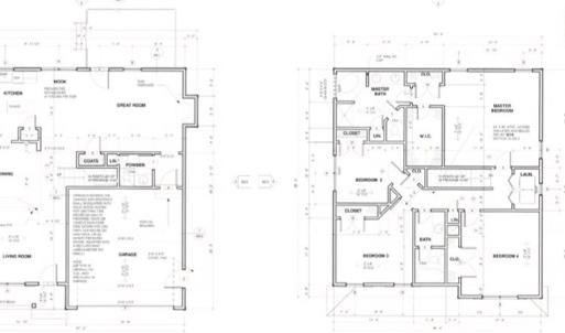
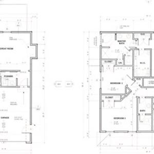
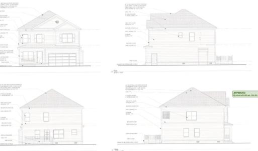
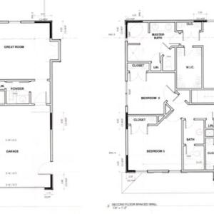
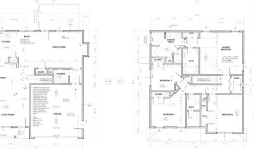
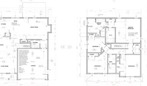
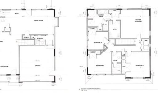
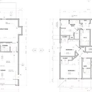
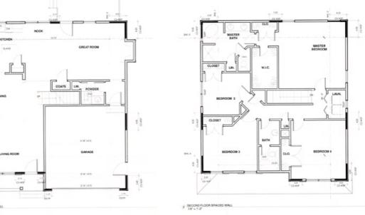
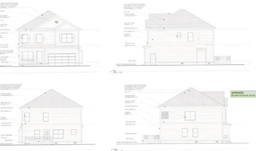
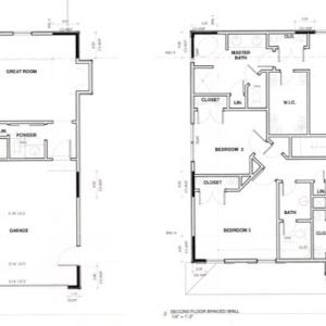
Enjoy new construction living in Boydton with a home designed for gatherings and everyday comfort. This four-bedroom, two-and-a-half-bath home features an open-concept first floor with multiple living spaces that create flexibility for entertaining and daily living. The kitchen opens directly into the great room, creating a bright and connected space for conversation and relaxing. A formal living room and formal dining room provide additional areas for hosting meals, celebrations, and family gatherings. Upstairs, four bedrooms offer comfortable space, including a primary bedroom that overlooks the expansive backyard. Located near Lake Gaston, an area known for boating, fishing, and outdoor recreation.

Last updated
March 15, 2026
MLS ID / MOPLS ID
59376
Address

532 Ferry Landing Drive
Boydton, VA 23917

Acreage
1.32
Bedrooms
4
Bathrooms
2
MLS ID / MOPLS ID
59376
Price
$789,900

Let us help you find your favorite place

Your Local Land Specialist