726 Ferry Landing Drive, Boydton, Mecklenburg

$899,900
Boydton, VA
1.1 acres

726 Ferry Landing Drive
Boydton, VA 23917
United States

Active
This listing is provided by KW Allegiance.

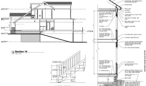
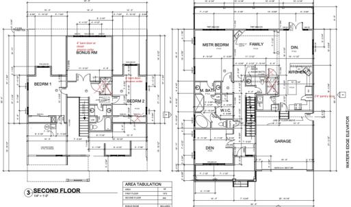
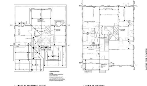
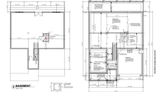
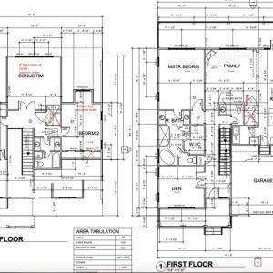
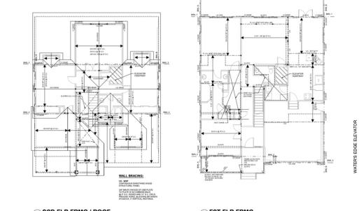
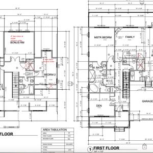
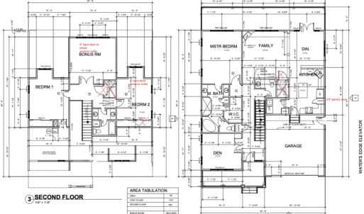
Are you ready for your brand new home with big water views? This thoughtfully designed new construction home is positioned at the very end of the subdivision on a cul-de-sac, offering a peaceful setting and beautiful views from the rear of the home. Inside, the open layout creates a bright and inviting main living space. The kitchen connects easily to the dining area and family room, making it ideal for everyday living and gatherings. A stunning corner fireplace adds warmth and character to the family room. The dining area and the primary bedroom are both positioned to capture the water view. The homesite slopes nicely toward the water and is designed for a basement level with exterior access and additional living space. Enjoy relaxing water views from the rear deck and multiple areas of the home. Located in a brand-new community in Boydton with homes currently under construction. Homesites include both riverfront and creekfront options near Lake Gaston, known for boating, fishing, and outdoor recreation.

Last updated
March 11, 2026
MLS ID / MOPLS ID
59360
Address

726 Ferry Landing Drive
Boydton, VA 23917

Acreage
1.13
Bedrooms
4
Bathrooms
2
MLS ID / MOPLS ID
59360
Price
$899,900

Let us help you find your favorite place

Your Local Land Specialist