1933 Royal Oak Drive, Lynchburg, Lynchburg

$524,900
Lynchburg, VA
1.3 acres

1933 Royal Oak Drive
Lynchburg, VA 24503
United States

Active
This listing is provided by Blickenstaff & Company, Realtors.

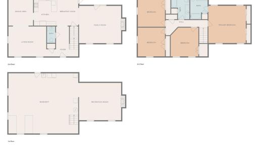
This timeless all brick home is on over an acre of prime land the highly desirable Oak Park neighborhood in the heart of Boonsboro. From the moment you arrive you can tell that this one owner home has been meticulously maintained in and out. Generously sized rooms that have a great floorplan featuring hardwood floors and tile throughout, crown moldings, solid doors and lots of windows. Welcoming foyer and Kitchen open to breakfast room with sunny bay window overlooking spacious level backyard perfect for playing or adding outdoor living space. Kitchen boosts stainless appliances and granite tops. Large family room with real wood burning/gas fireplace. Living room is open to dining room perfect for gathering. Two car attached garage with extra tall garage doors. Screened in rear porch plus open patio. Unfinished basement (1,300 sq ft )with fireplace that could easily be finished into another family/rec space. Convenient location to shopping and fine dining. Desirable Paul Munro school

Last updated
April 17, 2026
MLS ID / MOPLS ID
365695
Address

1933 Royal Oak Drive
Lynchburg, VA 24503

Acreage
1.34
Bedrooms
4
Bathrooms
3
MLS ID / MOPLS ID
365695
Price
$524,900

Let us help you find your favorite place

Your Local Land Specialist