2001 Autumn Drive, Lynchburg, Lynchburg

$324,900
Lynchburg, VA
0.2 acres

2001 Autumn Drive
Lynchburg, VA 24502
United States

Active
This listing is provided by Karl Miller Realty LLC.

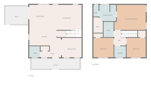
Back on the market at no fault of the seller! This beautiful 3 bed, 3 bath home is perfectly located and offers a warm blend of comfort, functionality, and thoughtful updates throughout. The open-concept layout features a spacious living area, breakfast bar, granite countertops, pantry, and newer appliances, ideal for both everyday living and entertaining. Hardwood floors and ceramic tile add timeless appeal, while a dual-zone HVAC provides year-round efficiency. The primary bedroom includes an ensuite bath with jetted tub, separate shower, and walk-in closet. A dedicated laundry room offers built-in cabinets and shelving for added storage. Additional highlights include a welcoming front porch with swing, and a side deck overlooking a spacious side yard complete with a firepit, perfect for outdoor enjoyment, and a 5-ft conditioned crawl space. A storage shed adds extra convenience, and the home offers plenty of room to unwind and enjoy both indoor comfort and outdoor living.

Last updated
March 15, 2026
MLS ID / MOPLS ID
364365
Address

2001 Autumn Drive
Lynchburg, VA 24502

Acreage
0.25
Bedrooms
3
Bathrooms
3
MLS ID / MOPLS ID
364365
Price
$324,900

Let us help you find your favorite place

Your Local Land Specialist