17 West Princeton Circle, Lynchburg, Lynchburg

$364,900
Lynchburg, VA
0.2 acres

17 West Princeton Circle
Lynchburg, VA 24503
United States

Active
This listing is provided by Re/Max 1st Olympic.

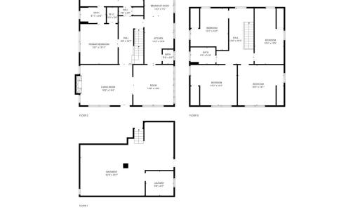
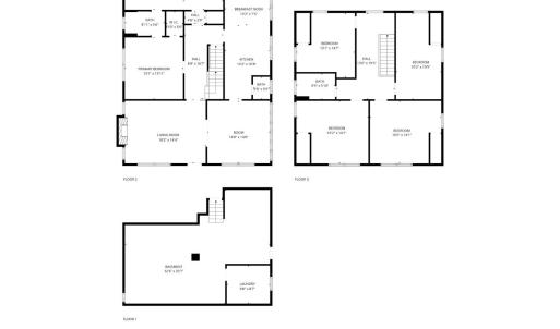
NEW price! Charming home in the heart of the '03, just a quick walk to Rivermont Avenue to enjoy shopping, restaurants, and a quick jaunt to downtown LYH for lots of fun, and to see the revitalization of the downtown area! Lovely yard, relaxing front porch, and the back yard is incredible with fencing, covered porch too. Step inside to beautiful hardwoods, fresh paint, and such a great floorplan with main level primary suite with adjoining office/nursery. The beautiful living room with fireplace is ideal for relaxing with guests and step into the formal dining room for memorable dinner parties, lovely lighting to optimize your enjoyment. The kitchen is very functional with lots of cabinets, nice appliances, breakfast area, or retreat to the patio and grill with guests, overlooking the large lush rear yard. Charming staircase to the second level for more bedroom spaces, spacious closets, full bath. Basement level offers abundance of storage, laundry, and ready to be finished. WOW!

Last updated
March 24, 2026
MLS ID / MOPLS ID
362986
Address

17 West Princeton Circle
Lynchburg, VA 24503

Acreage
0.17
Bedrooms
5
Bathrooms
3
MLS ID / MOPLS ID
362986
Price
$364,900

Let us help you find your favorite place

Your Local Land Specialist