1015 Jackson Street, Lynchburg, Lynchburg

$289,900
Lynchburg, VA
0.2 acres

1015 Jackson Street
Lynchburg, VA 24504
United States

Active
This listing is provided by EXP Realty LLC-Forest.

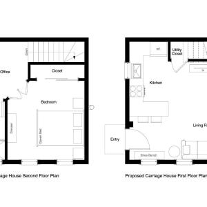
Home for sale in Lynchburg! Step into the charm of this beautifully updated Victorian, where timeless architecture meets modern comfort. Original trimwork, hardwood floors, tall windows, and soaring ceilings highlight the home's craftsmanship, while thoughtful updates including a new HVAC system, resealed and painted roof, and upgraded plumbing make living effortless. Currently operating as a successful owner-occupied Airbnb, this home offers excellent potential as a full-time residence or income-generating rental. The property can be sold mostly furnished, making it truly turnkey for buyers or investors. A historic carriage house adds extra character and restoration potential, while the landscaped gardens and fully fenced backyard create a private retreat just minutes from downtown Lynchburg. This home combines classic beauty with modern updates, offering a rare opportunity to own a piece of history in a prime location.

Last updated
November 20, 2025
MLS ID / MOPLS ID
362402
Address

1015 Jackson Street
Lynchburg, VA 24504

Acreage
0.15
Bedrooms
3
Bathrooms
3
MLS ID / MOPLS ID
362402
Price
$289,900

Let us help you find your favorite place

Your Local Land Specialist