NOAH'S LANDING DRIVE, BUMPASS, Louisa

$79,900
BUMPASS, VA
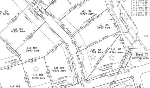
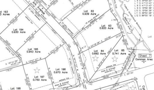
0.7 acres

NOAH'S LANDING DRIVE
BUMPASS, VA 23024
United States

Active
This listing is provided by Lake Homes Realty, LLC.

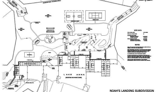
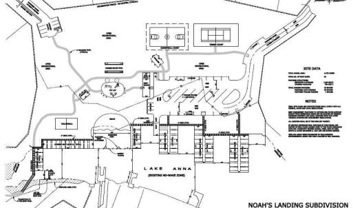
Wooded lot in Noah's Landing. The lot will access the community mass drain field saving the owner $5-10K+ on the installation of a drain field and allowing more choices for siting the house. Noah's Landing is one of Lake Anna's premier communities with many amenities located on the private side of the lake (pool 3). It offers a boat ramp, basketball court, sandy beach, volleyball area, and covered picnic area. Boat slip available for purchase. Firefly internet is currently being installed in the neighborhood.

Last updated
October 29, 2025
MLS ID / MOPLS ID
82613
Address

NOAH'S LANDING DRIVE
BUMPASS, VA 23024

Acreage
0.72
MLS ID / MOPLS ID
82613
Price
$79,900

Let us help you find your favorite place

Your Local Land Specialist