400 Kingswood Lane, Lynchburg, Campbell

$279,900
Lynchburg, VA
5.0 acres

400 Kingswood Lane
Lynchburg, VA 24504
United States

Active
This listing is provided by Mark A. Dalton & Co., Inc..

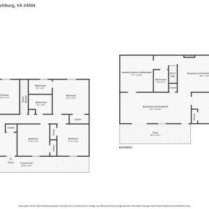
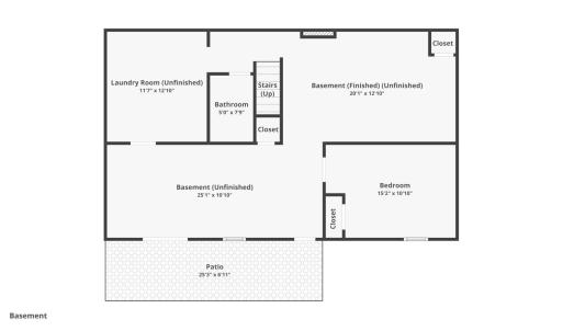
Tucked away on a quiet, private setting, 400 Kingswood Ln offers the perfect blend of seclusion and space while still being conveniently located in Lynchburg. Surrounded by mature trees, this property provides a peaceful retreat with plenty of privacy to enjoy year-round. The main level features three bedrooms and two full bathrooms, while the lower level expands the living space. This area includes an additional full bath and two finished rooms ideal for creating a private guest area or potential mother-in-law suite, especially with the kitchenette. Major systems have already been updated, with the heat pump and well pump both approximately 3 years old, adding peace of mind for the next owner. Additionally, the microwave and refrigerator have recently been replaced. This property is being sold as-is, offering a fantastic opportunity for buyers to add their own personal touches and build equity in a desirable, private location. Don't miss your chance to make this hidden gem your own!

Last updated
March 20, 2026
MLS ID / MOPLS ID
365142
Address

400 Kingswood Lane
Lynchburg, VA 24504

Acreage
5.03
Bedrooms
3
Bathrooms
3
MLS ID / MOPLS ID
365142
Price
$279,900

Let us help you find your favorite place

Your Local Land Specialist