3 Leesville Road, Lynch Station, Bedford

$319,700
Lynch Station, VA
1.1 acres

3 Leesville Road
Lynch Station, VA 24571
United States

Active
This listing is provided by NextHome TwoFourFive.

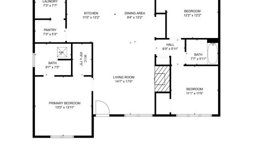
If you've been looking for new construction with some breathing room, this one checks the boxes. Sitting on just over an acre, this 3-bedroom, 2-bath home offers a split-bedroom layout, giving the primary suite its own private space. The main living area is open and inviting with granite countertops, a fireplace, and a pantry that actually gives you room to work with. Out back, you've got a large patio ready for cookouts, quiet mornings, or just enjoying the views. And you're only minutes from Smith Mountain Lakeperfect for weekends on the water. Photos are similar to. Finishes may vary.

Last updated
April 23, 2026
MLS ID / MOPLS ID
365995
Address

3 Leesville Road
Lynch Station, VA 24571

Acreage
1.06
Bedrooms
3
Bathrooms
2
MLS ID / MOPLS ID
365995
Price
$319,700

Let us help you find your favorite place

Your Local Land Specialist