112 HAINES POINT Terrace, Forest, Bedford

$864,900
Forest, VA
0.6 acres

112 HAINES POINT Terrace
Forest, VA 24551
United States

Active
This listing is provided by Re/Max 1st Olympic.

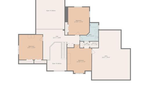
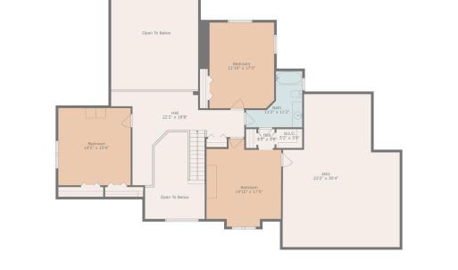
$10,000 incentive for Closing Costs & agreed upon Home Inspection Repairs, offered with acceptable offer. Highly desired Haines Point Subdivision at IVY LAKE.This custom-built 1-owner home exemplifies QUALITY. Be captivated by soaring ceilings & floor-to-ceiling Vinyl Clad Anderson Windows in the Beautiful Greatroom. All rooms are generously sized, incl/a dining room spacious enough to accommodate a long table & side cabinet. The kitchen is a cook's delight, granite countertops, custom cabinetry,island,snack bar, & spacious breakfast area. Off the kitchen, find a convenient half bath,separate laundry, & access to a large garage. The Primary Bedroom is ideally suited for 1-level living, complete w/a luxurious en-suite bath. Upstairs-3 large bedrooms providing comfort/flexibility, expansive attic storage. The backyard is a true oasis,offering saltwater in-ground pool,large patio,landscaping,& elegant black iron fencing. Two-separate driveways for garages. Basement offers future expansion

Last updated
February 24, 2026
MLS ID / MOPLS ID
360091
Address

112 HAINES POINT Terrace
Forest, VA 24551

Acreage
0.64
Bedrooms
4
Bathrooms
4
MLS ID / MOPLS ID
360091
Price
$864,900

Let us help you find your favorite place

Your Local Land Specialist