208 Stratford Place, Madison Heights, Amherst

$314,900
Madison Heights, VA
0.4 acres

208 Stratford Place
Madison Heights, VA 24572
United States

Active
This listing is provided by Elite Realty.

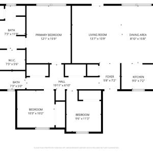
Welcome to 208 Stratford, a charming ranch home featuring one level living, an open concept with vaulted ceilings and three bedrooms. Upon entry you are greeted by beautiful hardwood floors that lead to the massive living room, dining area and kitchen complete with SS appliances, granite counters and tile backsplash. The primary bedroom is spacious and features a nice walk in closet, and a generous ensuite with double sink vanity and a step in shower. Down the hallway you will find 2 guest bedrooms, a full bathroom and the laundry closet. Look forward to grilling out this summer on your huge back deck that overlooks your flat fenced in backyard. Don't miss out on this charming all main level home convenient to shopping, restaurants, downtown Lynchburg and more!

Last updated
April 10, 2026
MLS ID / MOPLS ID
365675
Address

208 Stratford Place
Madison Heights, VA 24572

Acreage
0.40
Bedrooms
3
Bathrooms
2
MLS ID / MOPLS ID
365675
Price
$314,900

Let us help you find your favorite place

Your Local Land Specialist