TBB Hinson Dr., Myrtle Beach, Horry

$1,950,000
Myrtle Beach, SC
5.2 acres

TBB Hinson Dr.
Myrtle Beach, SC 29579
United States

Active
This listing is provided by Realty ONE Group Dockside.

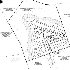
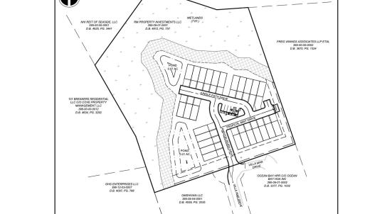
Rare opportunity to acquire a near-ready 26-unit townhome development in the heart of the Towne Centre corridor, one of the most desirable and fastest-growing areas of Carolina Forest. Surrounded by shopping, grocery stores, restaurants, gas stations, medical facilities, and everyday conveniences, this location offers the kind of accessibility and lifestyle appeal that today’s market demands. Positioned near McLeod Health Carolina Forest and almost directly across from the new Horry County Central Coast Complex, a major public investment expected to bring additional traffic, jobs, and long-term growth to the area, the property is exceptionally well placed for future value and strong market appeal. The project is already in the final stages of permitting, with substantial progress completed, creating a rare opportunity to step into an advanced-stage development with a significantly reduced path to construction compared to a typical project from scratch. Planned for 26 townhome units, each approximately 1,600 heated sqft with 3 bedrooms and 3 bathrooms, this is a highly desirable product type in a location where demand continues to grow. Zoned RC (Resort Commercial), offering additional flexibility for a variety of development approaches. An additional advantage is that no lift station is required, helping reduce development costs and simplifying the overall execution of the project. Opportunities that combine location, progress, and scalability in the Carolina Forest market are becoming increasingly limited.

Last updated
April 9, 2026
MLS ID / MOPLS ID
2609181
Address

TBB Hinson Dr.
Myrtle Beach, SC 29579

Acreage
5.20
MLS ID / MOPLS ID
2609181
Price
$1,950,000

Let us help you find your favorite place

Your Local Land Specialist