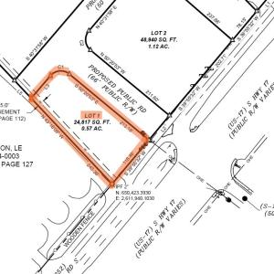
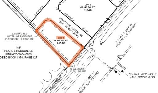
910 Highway 17 Business South, Surfside Beach, Horry

$700,000
Surfside Beach, SC
0.6 acres

910 Highway 17 Business South
Surfside Beach, SC 29575
United States

Active
This listing is provided by NAI The Litchfield Company.

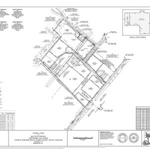
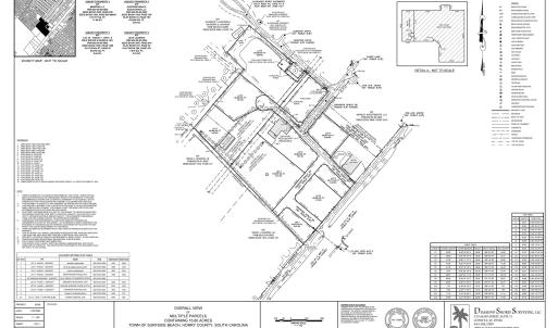
We plan to start construction March 1, 2026 and finish infrastructure 6-8 months. The new buyer can go ahead and start engineering and permitting their site during this process. We are having the main spine road come in directly at the traffic light into the development. Great access and exposure. The seller is installing all of the main roads within the development, curb cuts, utilities stub out and master stormwater. The site is cleared as well. These lots will be pad ready. 3 available locations in this site.

Last updated
January 20, 2026
MLS ID / MOPLS ID
2601623
Address

910 Highway 17 Business South
Surfside Beach, SC 29575

Acreage
0.57
MLS ID / MOPLS ID
2601623
Price
$700,000

Let us help you find your favorite place

Your Local Land Specialist