229 Joseph Kershaw, Eastover, Richland
229 Joseph Kershaw
Eastover, SC 29044
United States

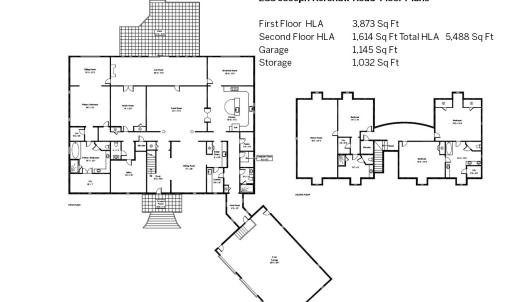
Goodwill Estate is a 736-acre, 7-parcel, gated haven. Surrounded by 3,600 acres of preservation land. While the estate has no conservation easements, its preserved land perimeter insures privacy and connection to the outdoors and wildlife. Steeped in history, Goodwill dates to 1795; added to the National Register of Historic Places in 1986. The property has two Charleston-inspired estate homes, examples of southern architectural elegance and modern luxury overlooking a pristine 35-acre lake. The 8,400-sf main home is offered furnished with custom furniture, valuable antiques, and artwork. The 5,488-sf 2nd home mirrors the main home luxury. Goodwill Estate is a blend of natural beauty with endless outdoor activities, rich wetlands, hardwood forests, 45 acres of fields and meadows, 12 miles of trails/roads and scenic Colonels Creek. Approval for a 22-lot community provides potential for expansion or conservation, presenting opportunities for both investors and homeowners alike.
Based on information submitted to the MLS GRID as of October 16, 2025 - 4:00pm. All data is obtained from various sources and may not have been verified by broker or MLS GRID. Supplied Open House Information is subject to change without notice. All information should be independently reviewed and verified for accuracy. Properties may or may not be listed by the office/agent presenting the information.