106 Lot 6 Roosevelt Reserve Park, Pine Knoll Shores, Carteret

$950,000
Pine Knoll Shores, NC
0.5 acres

106 Lot 6 Roosevelt Reserve Park
Pine Knoll Shores, NC 28512
United States

Active
This listing is provided by Ivester Jackson Christie's - 910-300-5140.

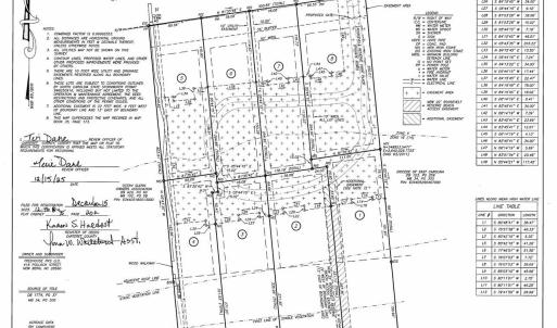
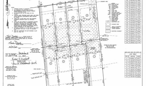
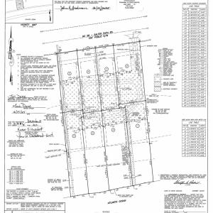
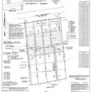
Marketing/Public Remarks: One of the Crystal Coast's most extraordinary coastal settings is now being offered--exclusively--for those envisioning a private retreat unlike anything else on the coast. Once held by the Roosevelt family and believed to have been strolled by Theodore Roosevelt himself, this historic property offers a rare blend of privacy, natural beauty, and direct access to the Atlantic from its serene setting in Pine Knoll Shores. The second-row homesite is thoughtfully positioned within a gated enclave, just moments from the ocean, and centered around a beautifully preserved private park that will serve as the heart of the community. An eco-friendly paver loop road winds through the property, connecting each homesite and elevating the character of this private coastal offering. With deeded beach access, underground utilities, and septic approvals for 5-10 bedrooms, Roosevelt Reserve offers the flexibility to bring your own builder and design a custom coastal residence--whether as a private retreat or part of a legacy compound to be enjoyed for generations.

Last updated
March 18, 2026
MLS ID / MOPLS ID
100561053
Address

106 Lot 6 Roosevelt Reserve Park
Pine Knoll Shores, NC 28512

Acreage
0.47
MLS ID / MOPLS ID
100561053
Price
$950,000

Let us help you find your favorite place

Your Local Land Specialist