103 Lot 2 Roosevelt Reserve Park, Pine Knoll Shores, Carteret

$1,800,000
Pine Knoll Shores, NC
0.8 acres

103 Lot 2 Roosevelt Reserve Park
Pine Knoll Shores, NC 28512
United States

Active
This listing is provided by Ivester Jackson Christie's - 910-300-5140.

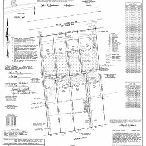
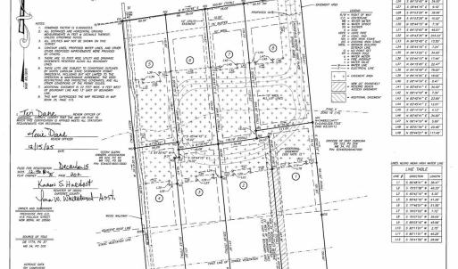
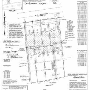
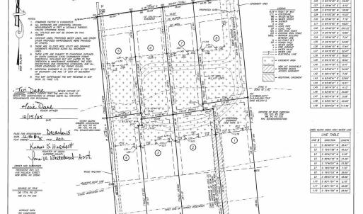
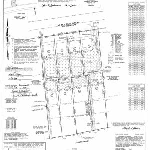
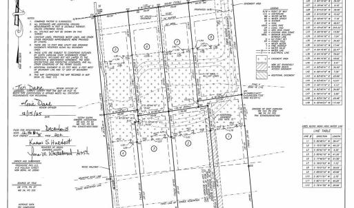
One of the Crystal Coast's most extraordinary oceanfront settings is now being offered--exclusively--for those envisioning a private estate unlike anything else on the coast. Once held by the Roosevelt family and believed to have been strolled by Theodore Roosevelt himself, this historic property combines unmatched privacy with sweeping Atlantic views from its secluded bluff in Pine Knoll Shores. Imagine a gated, one-of-a-kind enclave or multi-generational compound tucked among serene coastal woodlands, complete with a central park, an eco-friendly paver loop parkway, and a rare 50-foot height exception that allows for truly expansive ocean panoramas. With direct beach access, underground utilities, and septic approvals for 5-10 bedrooms, Roosevelt Reserve offers the freedom to bring your own builder and create a legacy retreat that will endure for generations

Last updated
March 16, 2026
MLS ID / MOPLS ID
100560640
Address

103 Lot 2 Roosevelt Reserve Park
Pine Knoll Shores, NC 28512

Acreage
0.76
MLS ID / MOPLS ID
100560640
Price
$1,800,000

Let us help you find your favorite place

Your Local Land Specialist