113 Lake, Morehead City, Carteret

$1,950,000
Morehead City, NC
0.8 acres

113 Lake
Morehead City, NC 28557
United States

Active
This listing is provided by Keller Williams Crystal Coast.

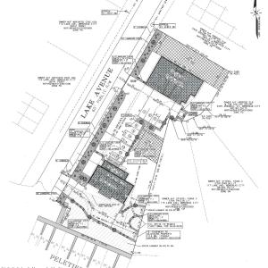
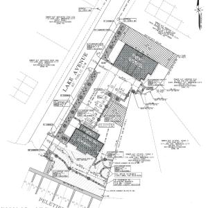
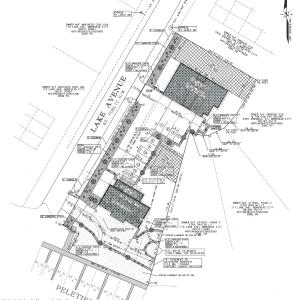
Prime waterfront location! Incredible parcel on Peletier Creek with 9 existing boat slips approved for a 9 condonimium project. If a buyer would prefer an improvement other than the approved condominiums, consideration of other options is made easier by the existing boundary survey that is part of the Rezoning Map. Please see documents for Rezoning Map with project details as well as approved Town of Morehead Rezoning Ordinance. *Small dwelling currently in place of no value. Also listed under residential listing MLS# 100544234

Last updated
December 8, 2025
MLS ID / MOPLS ID
100544233
Address

113 Lake
Morehead City, NC 28557

Acreage
0.76
MLS ID / MOPLS ID
100544233
Price
$1,950,000

Let us help you find your favorite place

Your Local Land Specialist