152 Bremerton, Bolivia, Brunswick

$99,000
Bolivia, NC
0.4 acres

152 Bremerton
Bolivia, NC 28422
United States

Active
This listing is provided by Keller Williams Innovate-Wilmington - 910-777-2200.

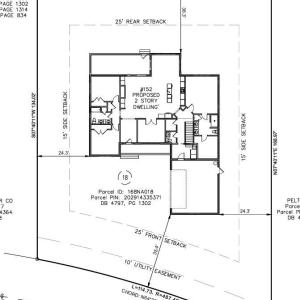
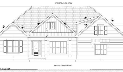
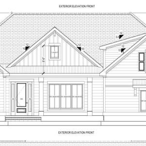
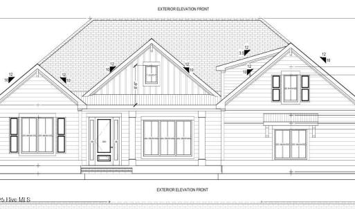
Flat, mostly cleared lot ready to GO with HOA approved house plans. ***$17,000 of Hoa fees, impact & application fees, survey and architect plans already paid for***. Meet with our Riversea approved Builder to start your dream home or buy this lot and hold until you are ready. If you are looking for a streamlined approach on the approval and design process-it doesn't get any easier. Beautiful homes already built in this quiet section of Riversea. Specific house plans available for this site featuring a coastal modern 2,700 square foot 1 level home with bonus room over the garage, front porch and rear screened patio. Please inquire further for more details. RiverSea Plantation is a premier gated community of approximately 540 acres, boat ramp and dock on the Lockwood Folly River, RV/Boat/Trailer storage and neighborhood amenities include a club house meeting room, social area, kitchen, fitness facility and changing rooms, outdoor and indoor swimming pools, tennis courts and community center.

Last updated
November 27, 2025
MLS ID / MOPLS ID
100535824
Address

152 Bremerton
Bolivia, NC 28422

Acreage
0.37
MLS ID / MOPLS ID
100535824
Price
$99,000

Let us help you find your favorite place

Your Local Land Specialist