1975 Southport Supply, Bolivia, Brunswick

$4,600,000
Bolivia, NC
70.8 acres

1975 Southport Supply
Bolivia, NC 28422
United States

Active
This listing is provided by Sunset Harbor Realty LLC - 910-338-5999.

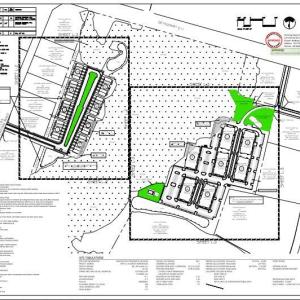
APPROVED 210 MULTIFAMILY AND 47 CONDO/TOWN HOME PROJECT! Anchored by lighted and signalized major intersection. Access and egress in place. This plan is fully entitled and approve for 7 multifamily buildings each building with 30 units for a total of 210 and 8 town home buildings totaling 47 units of different s sizes. Located adjacent Handee Hugos Gas Station and Subway. Less than 3 miles to Carolina National Golf Course, 5 miles to the NC Wildlife Dual Boat Ramp and Fishing Pier, 8 miles to Oak Island Beach, and 1 Mile to Roger Bacon Charter School makes this an ideal location for town homes and apartments. This property is also inside the county's 5 Mile economic development zone. Will consider dividing.

Last updated
November 3, 2025
MLS ID / MOPLS ID
100511295
Address

1975 Southport Supply
Bolivia, NC 28422

Acreage
70.82
MLS ID / MOPLS ID
100511295
Price
$4,600,000

Let us help you find your favorite place

Your Local Land Specialist