1616 Ellen Dawson, Raleigh, Wake

$225,000
Raleigh, NC
0.0 acres

1616 Ellen Dawson
Raleigh, NC 27603
United States

Active
This listing is provided by Cityspace Management.

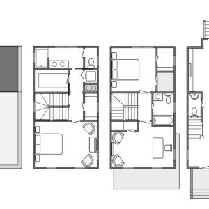
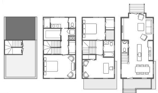
Bring your own builder to this homesite in Caraleigh Commons. located in the heart of the rapidly growing Downtown South District, just minutes from Downtown Raleigh, the NC Farmers Market, and Dix Park. The community features rooftop decks with skyline views, adjacency to protected woodlands, and direct access to the greenway trail system. This site is suitable for homes up to 2000 sqft. Buyers may bring their own custom design or select from a portfolio of over 50 custom designed home plans. The example plans and photos shown are of the Mod Birch plan, a 3-bedroom, 2.5-bath home offering approximately 1,525 square feet and a rooftop deck. For a complete list of available plans and builder referrals please contact the listing broker. This lot comes with key infrastructure already in place, including water and sewer taps, underground electric and cable, curb and gutter, driveway apron, and completed grading. Although public maps may take several months to update, the FEMA Letter of Map Revision is available in the documents section, confirming the engineered structural fill places the lot above the floodplain. This represents one of the last remaining opportunities to build a single-family home in Downtown South, an area rapidly emerging as the exclusive core of Raleigh's next generation of downtown living.

Listings marked with a Doorify MLS icon are provided courtesy of the Doorify MLS, of North Carolina, Internet Data Exchange Database. Brokers make an effort to deliver accurate information, but buyers should independently verify any information on which they will rely in a transaction. The listing broker shall not be responsible for any typographical errors, misinformation, or misprints, and they shall be held totally harmless from any damages arising from reliance upon this data. This data is provided exclusively for consumers’ personal, non-commercial use. Copyright 2026 Doorify MLS of North Carolina. All rights reserved.

Last updated
April 28, 2026
MLS ID / MOPLS ID
10162862
Address

1616 Ellen Dawson
Raleigh, NC 27603

Acreage
0.04
MLS ID / MOPLS ID
10162862
Price
$225,000

Let us help you find your favorite place

Your Local Land Specialist