4120 Picardy, Raleigh, Wake
4120 Picardy
Raleigh, NC 27612
United States

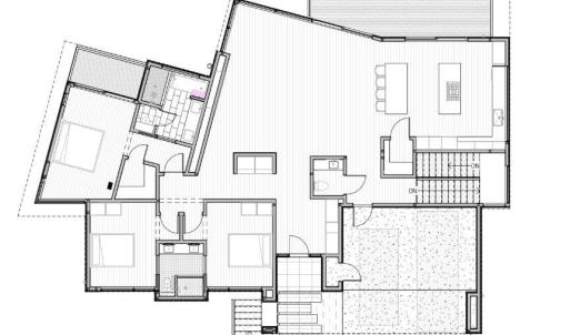
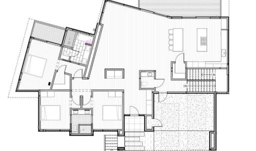
Tucked away on a quiet, private lot in Raleigh, this is a rare opportunity to craft a residence as architecturally bold as it is serene. With city-approved plans by the acclaimed Louis Cherry Architecture, this modernist vision is ready to rise with permits in hand--or can be reimagined to reflect your own design ethos. A study in clean lines, organic materials, and seamless indoor-outdoor flow, the home invites nature in through expansive walls of glass, while soaring ceilings and open volumes elevate everyday living. With an attached apartment and biophilic principles at its core, the design offers both presence and peace--an intentional space where well-being, beauty, and modern luxury align. Whether it's morning coffee bathed in natural light, evenings spent entertaining under the stars, or quiet moments surrounded by mature trees overlooking the creek, this property offers a sanctuary of subtle sophistication--just minutes from Raleigh's finest dining, retail, and cultural spaces. And as you are daydreaming, don't forget the ground floor workshop for your passion projects. This isn't just a lot. It's a canvas--and the foundation for something truly exceptional.
Listings marked with a Doorify MLS icon are provided courtesy of the Doorify MLS, of North Carolina, Internet Data Exchange Database. Brokers make an effort to deliver accurate information, but buyers should independently verify any information on which they will rely in a transaction. The listing broker shall not be responsible for any typographical errors, misinformation, or misprints, and they shall be held totally harmless from any damages arising from reliance upon this data. This data is provided exclusively for consumers’ personal, non-commercial use. Copyright 2026 Doorify MLS of North Carolina. All rights reserved.