610 Devereux, Raleigh, Wake

$700,000
Raleigh, NC
0.2 acres

610 Devereux
Raleigh, NC 27605
United States

Active
This listing is provided by Long & Foster Real Estate INC/Raleigh.

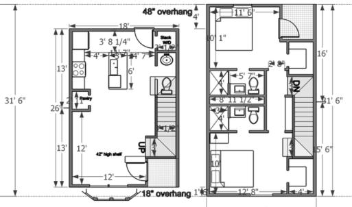
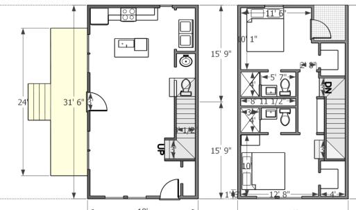
BUILDERS, INVESTORS & DEVELOPERS....TIME-TO-SELL this rare opportunity in the historic Glenwood-Brooklyn Neighborhood with its rich history and architectural value, lots 11 & 12 offer several redevelopment options. As a 'non-contributing' property, allowing for a demolition permit, this property is primed for a conforming residential build and/or opportunities to build multiple income producing properties. Dual access to property via Devereux Street in front and a 14' alleyway in the back further expands site planning options. Ideally a redevelopment opportunity, though immediate owner/renter occupancy potential as well, with minimal maintenance and repairs. Short distance to Fred Fletcher Park, Broughton High School, Partnership Magnet Elementary, Smokey Hollow, and Glenwood South. With multiple redevelopment options, this property will appeal to those looking for a new single-family home on the northern edge of downtown Raleigh, investors looking to maximize revenue from multiple micro-unit condominium configurations, an owner-operator looking for a primary residence with long and short-term rental options, or an owner that needs a separate structure for a home office, shop, carriage house and/or ADU. Due diligence on multiple development scenarios done. Property surveyed and utilities vetted. Great employers / amenities nearby include: Cameron Village, NC State University, Campbell Law School, Red Hat, First Citizens Bank and many more. Any redevelopment plan must be approved by the Raleigh Historic Development Authority. Initial conversations with RHDC have begun. Great opportunity for a buyer that wants to get moving faster given the extensive due diligence, initial conversations with COR and RHDC. Often referred to as Raleigh's first master-planned neighborhood, with many of the architecturally contributing homes built from 1905 to 1951, gain the beauty of a historical background, excellent location and conceptual architecture and site plan concepts from an experienced residential developer / owner. Bring all offers!

Listings marked with a Doorify MLS icon are provided courtesy of the Doorify MLS, of North Carolina, Internet Data Exchange Database. Brokers make an effort to deliver accurate information, but buyers should independently verify any information on which they will rely in a transaction. The listing broker shall not be responsible for any typographical errors, misinformation, or misprints, and they shall be held totally harmless from any damages arising from reliance upon this data. This data is provided exclusively for consumers’ personal, non-commercial use. Copyright 2026 Doorify MLS of North Carolina. All rights reserved.

Last updated
March 31, 2026
MLS ID / MOPLS ID
10137170
Address

610 Devereux
Raleigh, NC 27605

Acreage
0.22
MLS ID / MOPLS ID
10137170
Price
$700,000

Let us help you find your favorite place

Your Local Land Specialist