1504 Caswell, Raleigh, Wake

$1,200,000
Raleigh, NC
0.3 acres

1504 Caswell
Raleigh, NC 27608
United States

Active
This listing is provided by Beacon Street Realty, LLC.

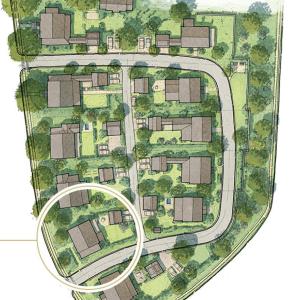
A rare opportunity in Caswell Heights—Homesite 5 is a prime corner lot now available in this thoughtfully designed 11-homesite neighborhood nestled in the historic heart of Hayes Barton. Previously spoken for and now back on the market, this homesite offers the opportunity to build the home of your dreams in one of Raleigh's most exclusive and enduring neighborhoods. Caswell Heights is a place where classic architecture, timeless landscapes, and a deep sense of community come together. Approved builder list and design guidelines available upon request.

Listings marked with a Doorify MLS icon are provided courtesy of the Doorify MLS, of North Carolina, Internet Data Exchange Database. Brokers make an effort to deliver accurate information, but buyers should independently verify any information on which they will rely in a transaction. The listing broker shall not be responsible for any typographical errors, misinformation, or misprints, and they shall be held totally harmless from any damages arising from reliance upon this data. This data is provided exclusively for consumers’ personal, non-commercial use. Copyright 2026 Doorify MLS of North Carolina. All rights reserved.

Last updated
December 6, 2025
MLS ID / MOPLS ID
10136116
Address

1504 Caswell
Raleigh, NC 27608

Acreage
0.28
MLS ID / MOPLS ID
10136116
Price
$1,200,000

Let us help you find your favorite place

Your Local Land Specialist