2802 Milburnie, Raleigh, Wake
2802 Milburnie
Raleigh, NC 27610
United States

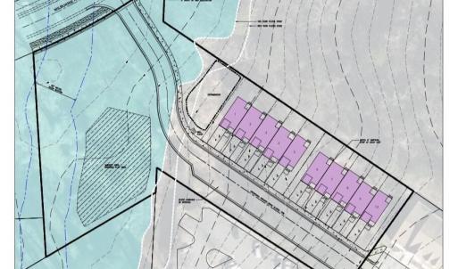
Excellent development opportunity with seller financing available! Prime Raleigh location zoned OX-5 (Mixed Use) with an unapproved preliminary site plan for apartment building or up to 10 townhomes. This property includes a natural area ideal for a community garden, pocket park, walking trail, or other landscaped amenity. Recently recombined to 1.634 acres with ROW agreement in place for access from New Bern Ave, plus Milburnie Rd frontage. The New Bern Ave BRT (Bus Rapid Transit) corridor is slated to begin construction Fall 2025. Minutes to WakeMed Raleigh, I-440, Downtown Raleigh, and Crabtree Creek Trail. Now is the time to invest in this emerging, transit-oriented health and education district! Maps and proposed site plans available for review.
Listings marked with a Doorify MLS icon are provided courtesy of the Doorify MLS, of North Carolina, Internet Data Exchange Database. Brokers make an effort to deliver accurate information, but buyers should independently verify any information on which they will rely in a transaction. The listing broker shall not be responsible for any typographical errors, misinformation, or misprints, and they shall be held totally harmless from any damages arising from reliance upon this data. This data is provided exclusively for consumers’ personal, non-commercial use. Copyright 2026 Doorify MLS of North Carolina. All rights reserved.