Browntown, Battleboro, Nash

$130,000
Battleboro, NC
3.2 acres

Browntown
Battleboro, NC 27809
United States

Active
This listing is provided by Stone Auction & Realty.

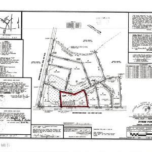
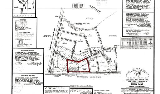
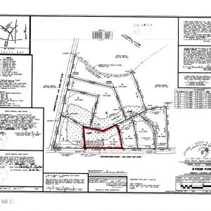
Build your dream home and enjoy rural living on this beautiful 3.23-acre lot on N Browntown Road with a large pond in backyard. County water tap estimation completion expected in early 2026. Septic permit was issued in 2021. Next door address of 4945 Burnette Road has a drain field easement on this lot (Lot 4). Protective Covenants include stick-built only home with 2,000 SF minimum and 1,248 SF on first floor.

Last updated
November 27, 2025
MLS ID / MOPLS ID
100539390
Address

Browntown
Battleboro, NC 27809

Acreage
3.23
MLS ID / MOPLS ID
100539390
Price
$130,000

Let us help you find your favorite place

Your Local Land Specialist