Tract 2 1676 Ross, Robersonville, Martin
Tract 2 1676 Ross
Robersonville, NC 27871
United States

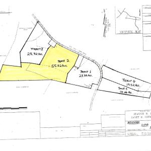
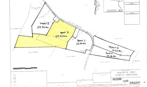
Beautiful farm in Martin County with 5 tracts of land to be auctioned off November 22, 2025 at 11AM, with 4,000 feet of road frontage on Ross Road. 10% down day of sale to be placed in Stone Auction & Realty Trust Account until closing on or before January 8, 2026. A 5% Buyer's Premium will be added to determine contract sales price. Buyer agent must register 48 hours prior to sale date. Listed price is a suggested starting bid.
Listings marked with a Doorify MLS icon are provided courtesy of the Doorify MLS, of North Carolina, Internet Data Exchange Database. Brokers make an effort to deliver accurate information, but buyers should independently verify any information on which they will rely in a transaction. The listing broker shall not be responsible for any typographical errors, misinformation, or misprints, and they shall be held totally harmless from any damages arising from reliance upon this data. This data is provided exclusively for consumers’ personal, non-commercial use. Copyright 2025 Doorify MLS of North Carolina. All rights reserved.