41199 Yardarm Court, Avon, Dare

$129,000
Avon, NC
0.4 acres

41199 Yardarm Court
Avon, NC 27915
United States

Active
This listing is provided by Landmark Sotheby's Internation.

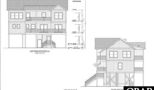
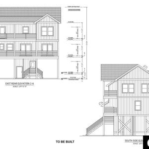
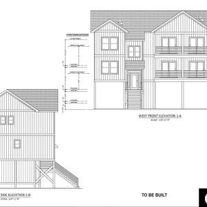
This 15,743 sq.ft. homesite located in the amenity-rich community of Kinnakeet Shores in Avon has been mostly cleared with preliminary site preparation and some fill already in place, offering a strong starting point for construction while allowing a new owner flexibility based on the desired home design. An approved house plan is already on file with the County for 6 bed/6 bath coastal residence w/elevator, helping to streamline the building process. Kinnakeet Shores is well-suited for full-time or second-home living, and is also a proven vacation rental community, making this property attractive to a wide array of buyers. Residents of Kinnakeet Shores enjoy access to a community pool and tennis courts, soundside walking trails, and convenient beach access via neighborhood walkovers. The location offers an easy balance of quiet residential living with close proximity to all Hatteras Island has to offer.

Last updated
January 27, 2026
MLS ID / MOPLS ID
131628
Address

41199 Yardarm Court
Avon, NC 27915

Acreage
0.36
MLS ID / MOPLS ID
131628
Price
$129,000

Let us help you find your favorite place

Your Local Land Specialist