Rocky River, Monroe, Union
Rocky River
Monroe, NC 28110
United States

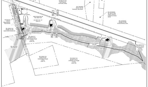
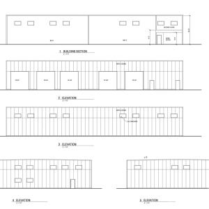
Exceptional opportunity to acquire ±27.7 acres of General Industrial (GI) zoned property with site work approvals already secured. This fully entitled project is positioned for immediate development and includes approved permits for erosion control, storm water, and driveway access. The approved site plan features a proposed 10,800 sq.ft. industrial shop building along with approximately 4 acres of paved parking and laydown area. All required bonds are in place, and extensive pre-development work has been completed. Seller has finalized construction drawings and all construction quotes in hand. The next step in the process was a formal meeting between the preferred General Contractor and the City of Monroe Planning & Zoning Department to initiate the building permit process. List price includes all site work approvals, engineering, and building drawings. Ideal for manufacturing, distribution, fleet operations, storage, or investment development.
Based on information submitted to the MLS GRID as of February 24, 2026 - 5:00am. All data is obtained from various sources and may not have been verified by broker or MLS GRID. Supplied Open House Information is subject to change without notice. All information should be independently reviewed and verified for accuracy. Properties may or may not be listed by the office/agent presenting the information.