32286 Laton, Albemarle, Stanly
32286 Laton
Albemarle, NC 28001
United States

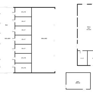
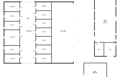
Set on 54.04 acres across two parcels, Mountain Creek Farm offers protected farmland with income potential. The landscape includes rolling pasture, wooded acreage, mature oaks, a pond, and creek frontage. A conservation easement with Three Rivers Land Trust preserves agricultural and natural use while allowing a working farm or private estate. The existing historic home cannot be used as a residence; a designated one-acre envelope permits a future single-family residence. The original homesite may be used for a produce store or educational, recreational, or research activities. Improvements include a 13-stall barn with hay loft, equipment shed, milking parlor, storage barn, and grain silo. Established blueberry operation with 1,200 pesticide-free bushes, asparagus, and seasonal U-pick business. Suitable for horses, livestock, hunting, gardening, or agritourism. Located 4 miles from Albemarle, 5 miles to Badin Lake, and approximately 1 hour to Charlotte.
Copyright 2026 Triad MLS, Inc. All rights reserved. IDX information is provided exclusively for personal, non-commercial use, and may not be used for any purpose other than to identify prospective properties consumers may be interested in purchasing. Information is deemed reliable but not guaranteed. Properties marked with the Triad MLS, Inc. icon are provided courtesy of the Triad MLS, Inc.'s, Internet Data Exchange Database.
The listing broker's offer of compensation is made only to participants of the MLS where the listing is filed.
Sale data is for informational purposes only and is not an indication of a market analysis or appraisal. Data cannot be redistributed and cannot be used for any reason other than provided herein. Data last refreshed: May 23, 2026 - 1:00am