144 Lincoln, Chapel Hill, Orange
144 Lincoln
Chapel Hill, NC 27516
United States

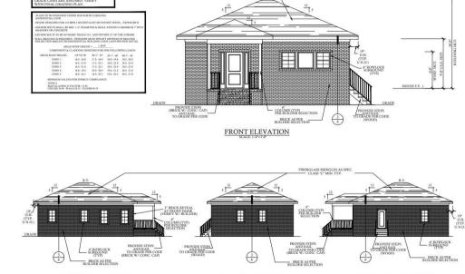
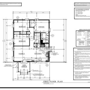
Shovel-Ready Investor Gem - 1.3 Miles to UNC Campus! Skip the red tape and start building immediately on this prime lot in the heart of Chapel Hill. Located just 1.3 miles from UNC, this property is perfectly positioned for high-demand student housing or a lucrative rental. All the heavy lifting is done: approx $20,000+ in pre-construction value is included, featuring town-approved architectural plans for a 3BR/2BA home, approved permits, and a site already surveyed and prepped with a driveway apron, gravel entrance, and OWASA water taps. With a walking path to the bus stop at the end of the street, your future tenants are minutes from class. This is the definition of a ''plug-and-play'' development--just bring your contractor and start framing! Please see Docs section for detailed pre-construction improvements and contact list agent for all questions on approved house plans. Property in Pine Knolls Conservation District.
Listings marked with a Doorify MLS icon are provided courtesy of the Doorify MLS, of North Carolina, Internet Data Exchange Database. Brokers make an effort to deliver accurate information, but buyers should independently verify any information on which they will rely in a transaction. The listing broker shall not be responsible for any typographical errors, misinformation, or misprints, and they shall be held totally harmless from any damages arising from reliance upon this data. This data is provided exclusively for consumers’ personal, non-commercial use. Copyright 2026 Doorify MLS of North Carolina. All rights reserved.