906 Maynard, Durham, Durham
906 Maynard
Durham, NC 27704
United States

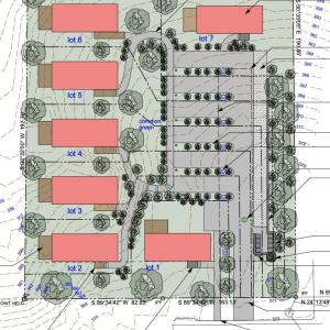
Take advantage of a rare investment opportunity at 906 and 908 W. Maynard Ave, ideally situated for developers and builders looking to capitalize on Durham's growing demand for urban housing. This prime assembly offers a combined .7 acres of land, providing a perfect slate for a high-density residential project. Under Durham's favorable ''small lot'' development options, the site is primed for the construction of up to 7 small lot homes, maximizing the property's footprint and ROI. The plat strategy designed by Center Studio Architecture can be paired with modern home plans, sold separately. While 906 W. Maynard currently features an existing structure, the value lies in the land's redevelopment potential, as removing the current home paves the way for a modern, multi-unit community. A full topological survey is available to accelerate your due diligence, ensuring you can move quickly on this ready-to-develop gem located just minutes from downtown, major transit corridors, and Duke University.
Listings marked with a Doorify MLS icon are provided courtesy of the Doorify MLS, of North Carolina, Internet Data Exchange Database. Brokers make an effort to deliver accurate information, but buyers should independently verify any information on which they will rely in a transaction. The listing broker shall not be responsible for any typographical errors, misinformation, or misprints, and they shall be held totally harmless from any damages arising from reliance upon this data. This data is provided exclusively for consumers’ personal, non-commercial use. Copyright 2026 Doorify MLS of North Carolina. All rights reserved.