2707 Fawn, Durham, Durham
2707 Fawn
Durham, NC 27705
United States

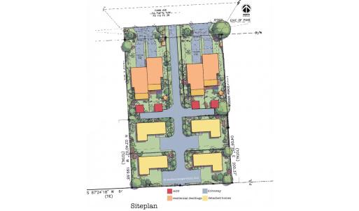
Contractor-ready development opportunity! Prime Durham location for builders and investors. Four-lot project configured as two sets of single-family attached dwellings. Each unit has its own tax ID and is ADU-eligible. Lots have a gentle slope and easy access. Extensive pre-development has been completed, offering a major head start. This listing includes 2707 A/B Fawn Ave and 2711 A/B Fawn Ave. Notes: Seller is a licensed Real Estate Broker. Tax values pending reassessment. Elevation, site plan, and floor plans are conceptual only.
Listings marked with a Doorify MLS icon are provided courtesy of the Doorify MLS, of North Carolina, Internet Data Exchange Database. Brokers make an effort to deliver accurate information, but buyers should independently verify any information on which they will rely in a transaction. The listing broker shall not be responsible for any typographical errors, misinformation, or misprints, and they shall be held totally harmless from any damages arising from reliance upon this data. This data is provided exclusively for consumers’ personal, non-commercial use. Copyright 2026 Doorify MLS of North Carolina. All rights reserved.